Page suivante
Page précédente
Toulouse (31400)

Appartement 3 pièce(s) 2 chambre(s) 58 m²

1
Balcon
Ascenseur
Réf C317

VENDU - QUARTIER SAOUZELONG T3 avec terrasse, balcon et parking en sous-sol.

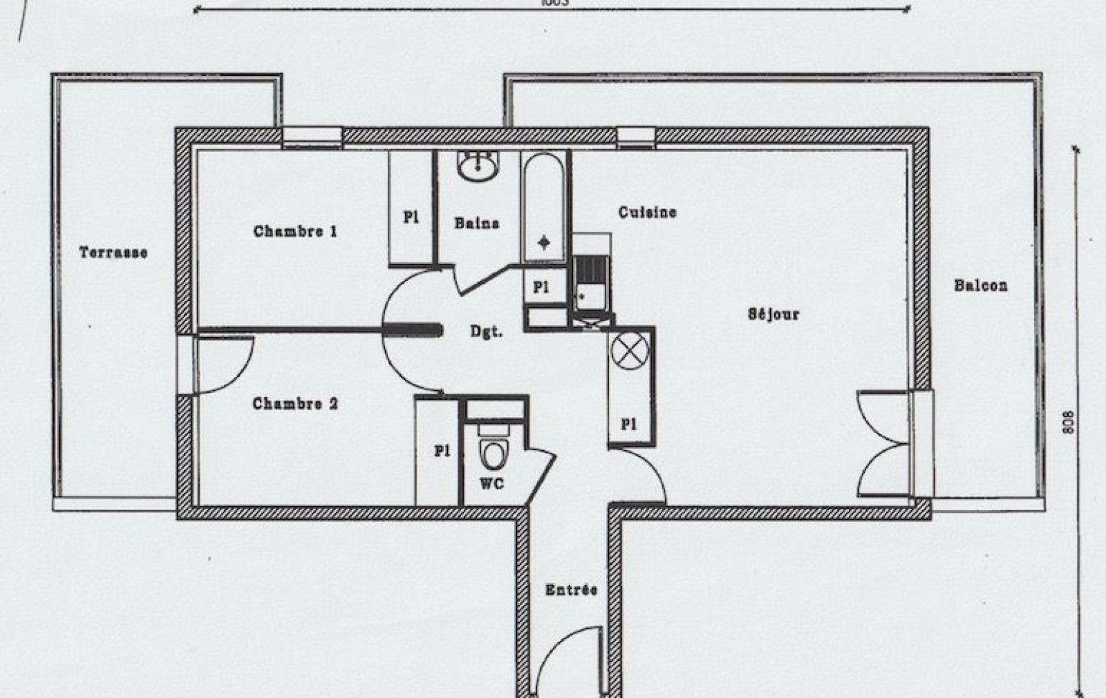
Découvrez ce bel appartement de type T3 de 58m2, au 3éme et dernier étage d'une résidence récente.

Composé d'un entrée, un séjour avec cuisine ouverte équipée, accés à une terrasse de 14m2, 2 chambres dont une avec balcon, une salle de bain et wc.

Ce bien est vendu loué, bail de 3ans signé en Décembre 2019, (actuel loyer = 675€ + 80€ de charges locatives).

Projet d'investissement locatif de qualité, à proximité immédiate du Métro et des facultés.

A DECOUVRIR SANS TARDER

Bilan énergétique

Diagnostics énergetiques
A propos de ce bien Caractéristiques de ce bien
  • Surface 58 m²
  • carrez 58 m²
  • 2 chambre(s)
  • 1 salle(s) de bain
  • cuisine américaine (équipée)
  • 3ème étage
  • 3 étage(s)
  • ascenseur
  • balcon
  • terrasse

Info copro

Copropriété
  • Copropriété Oui
  • Nombre de lots 40
  • Quote part annuelle des charges 1 237 €
  • Plan de sauvegarde Non

Financier

Informations financières
Prix net vendeur 200 000 €
Charges 103 €

Simulation

Calcul des mensualités
* Champs obligatoires
LA TOULOUSAINE Agence